Curtain Cove Ceiling CAD Drawing with Section Details in AutoCAD File
Description
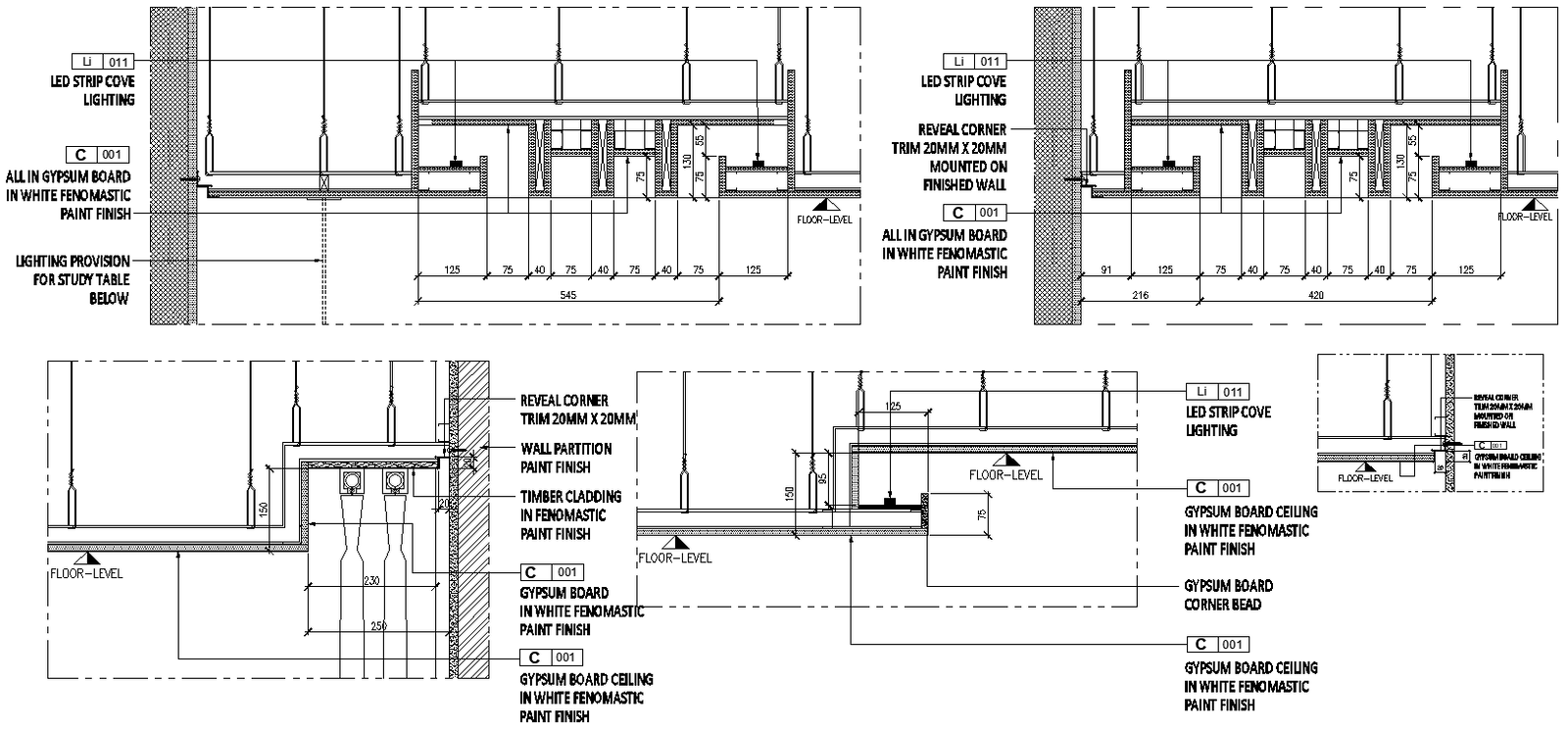
Cove ceiling CAD drawing in AutoCAD DWG format. This file includes sectional views, dimensions, molding profiles, and installation details for residential and commercial interiors. Architects, interior designers, and ceiling contractors can use this CAD drawing to plan precise ceiling designs, integrate curtains seamlessly, and enhance interior aesthetics. The editable CAD ensures accurate layout and easy modifications.

Uploaded by:
Eiz
Luna

