CCTV System Riser Diagram Detail DWG AutoCAD file
Description
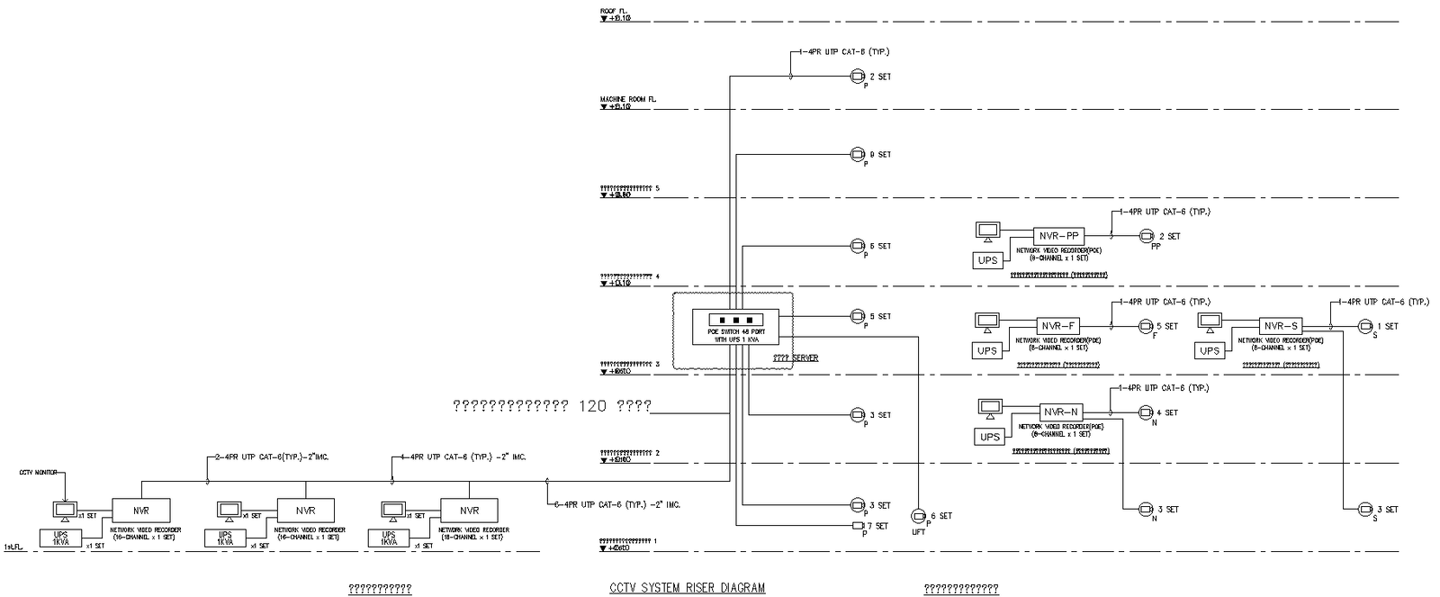
"Explore our detailed CCTV System Riser Diagram DWG AutoCAD file, perfect for architects and engineers needing precise 2D drawings. This CAD file offers a comprehensive view of CCTV system integration, aiding in seamless project planning and implementation. Ideal for security system designers, the drawing includes clear annotations and dimensions, ensuring easy integration into construction plans. Download this DWG file to streamline your workflow, featuring accurate representations that meet industry standards. Enhance your project documentation with our professionally crafted CAD drawings, tailored to facilitate efficient design processes. Perfect for both residential and commercial projects, this CCTV System Riser Diagram DWG file is a valuable addition to your AutoCAD files collection. Optimize your design workflow with our reliable CAD resources, designed to meet the demands of modern construction projects."
File Type:
DWG
File Size:
166 KB
Category::
Electrical
Sub Category::
Electrical Automation Systems
type:
Gold

Uploaded by:
Eiz
Luna

