1st floor Computer Telephone and Access Control System Detail DWG AutoCAD file
Description
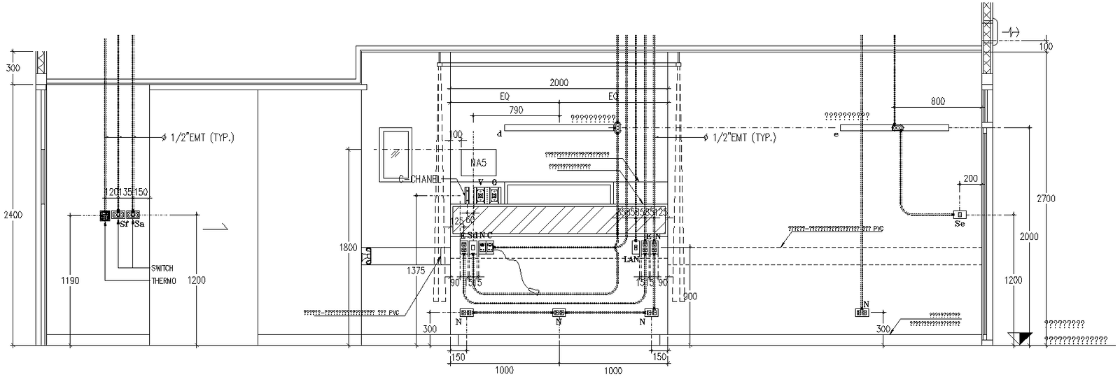
The 1st Floor Computer Telephone and Access Control System Detail DWG AutoCAD file provides a comprehensive design for managing computer, telephone, and access control systems on the first floor of a building. This detailed CAD drawing ensures seamless integration and functionality of these critical systems, making it an essential tool for architects and engineers. The file includes precise layouts and schematics, helping professionals visualize and implement the infrastructure efficiently. This 2D drawing is available in the DWG file format, offering compatibility with various AutoCAD versions. Whether you're planning a new project or upgrading an existing system, this AutoCAD file will support your needs with detailed and accurate information. Additionally, the Access Control System Riser Diagram DWG AutoCAD file is included, further enhancing the project’s planning and execution. Discover the ease of use and reliability of these CAD files for your next architectural or engineering project.
File Type:
DWG
File Size:
580 KB
Category::
Electrical
Sub Category::
Electrical Automation Systems
type:
Gold

Uploaded by:
Eiz
Luna

