MDB and EMDB Panel Front View DWG AutoCAD file
Description
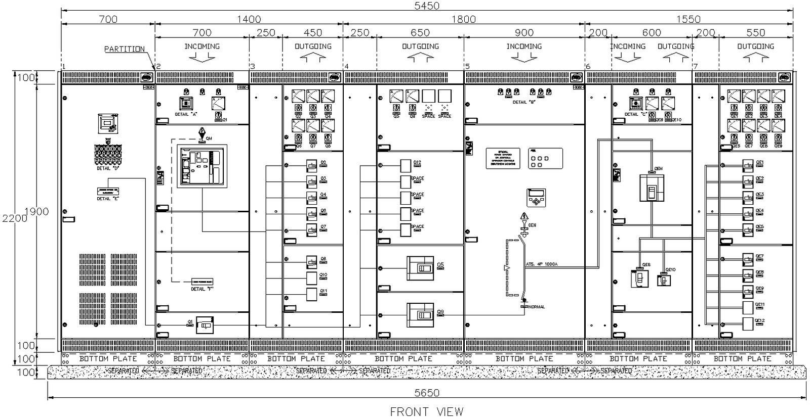
Looking for a detailed blueprint of MDB and EMDB panel fronts? Our high-quality AutoCAD DWG file provides a clear and accurate front view representation. Perfect for engineers, designers, and contractors working on electrical panel projects. Download now for precise dimensions, components, and layout information to streamline your design process

Uploaded by:
Eiz
Luna

