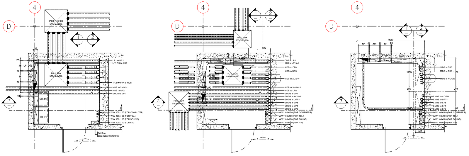
Electrical Room Layout For Different Floor Detail DWG AutoCAD file
Description
Need a clear picture of your building's electrical system? This AutoCAD DWG file provides detailed floor-by-floor layouts of electrical rooms. Perfect for architects, engineers, and contractors, it offers precise information on electrical components, equipment placement, and wiring diagrams. Download now for efficient planning and design!

Uploaded by:
Eiz
Luna

