Ground to top floor house plan layout in DWG format
Description
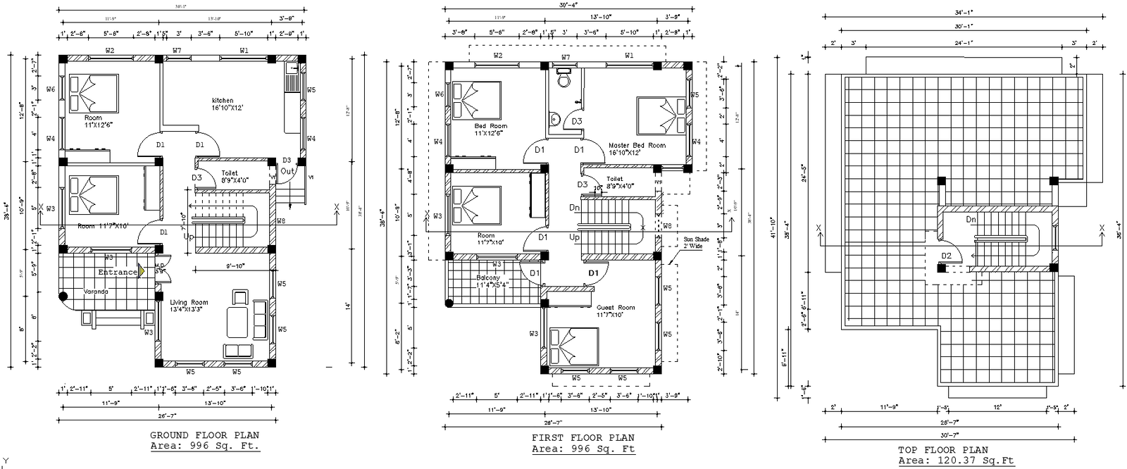
Discover detailed architectural plans with our comprehensive DWG AutoCAD file, featuring ground floor, first floor, and top floor layouts. This CAD drawing provides clear, precise details for each level of a building, ideal for planning and design purposes. Perfect for architects, builders, and designers, our 2D CAD files offer an organized view of floor plans in a versatile DWG format. Easily navigate through the detailed sections and elevations to ensure accurate construction and renovation. Enhance your projects with this essential CAD resource, meticulously crafted to meet your design and planning needs.

Uploaded by:
Eiz
Luna

