3D Canteen Seating Arrangement Plan Images DWG AutoCAD file
Description
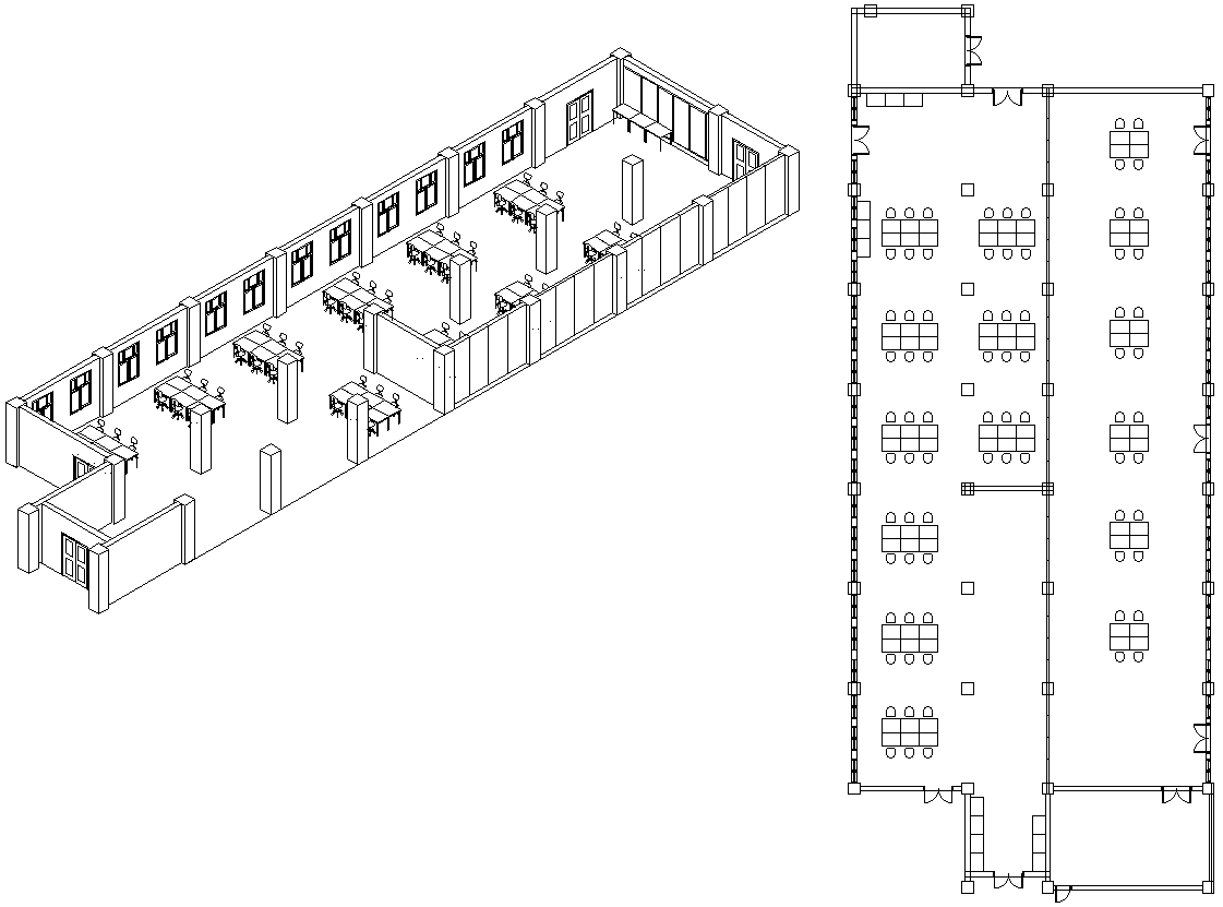
Looking for a 3D canteen seating arrangement plan? Our DWG AutoCAD file offers detailed and innovative seating designs perfect for any dining area. Ideal for architects and designers, this file provides a comprehensive layout to enhance your project's functionality and aesthetics. Explore our top-notch CAD drawings to find the perfect solution for your canteen seating needs. With easy-to-use features, our CAD files will help you create efficient and stylish dining spaces. Download now to see how our AutoCAD files can bring your canteen design to life.

Uploaded by:
Eiz
Luna

