3BHK house plan layout in DWG AutoCAD drawing file
Description
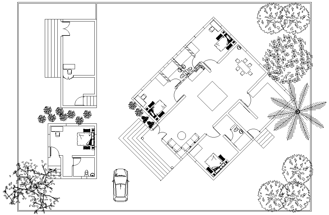
Discover a well-designed 3BHK house layout plan with this detailed DWG AutoCAD file. Perfect for homeowners and architects, this CAD drawing offers a comprehensive view of a stylish and functional three-bedroom house. From spacious living areas to cleverly designed bedrooms, this CAD file provides all the essential details you need for your next project. With precise measurements and thoughtful design elements, this AutoCAD file ensures a seamless planning experience. Whether you're renovating or building from scratch, this layout plan is an invaluable resource for visualizing and executing your ideal home design. Download now for a closer look at your future living space.

Uploaded by:
Eiz
Luna

