Elevation & Section Fittings for Chilled Water AHU DWG File
Description
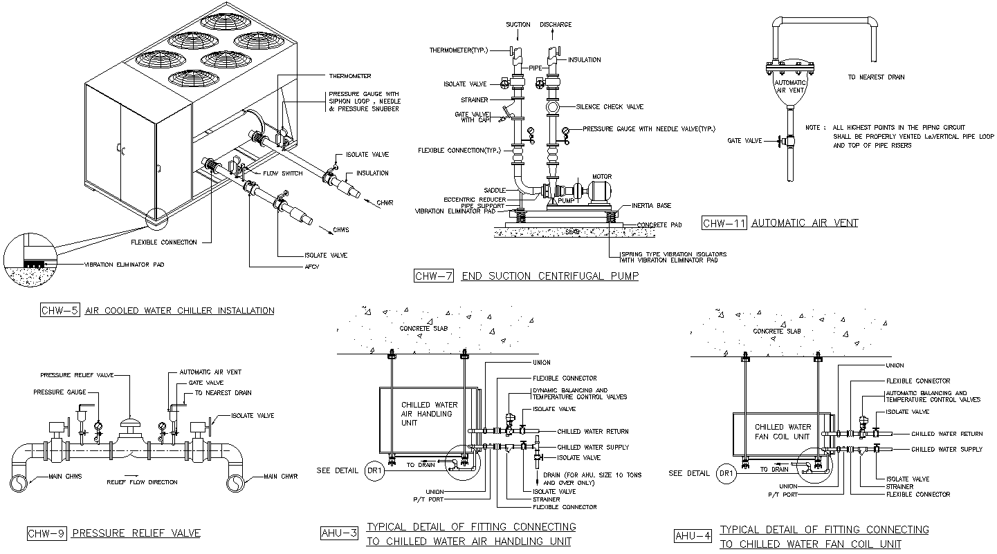
Discover comprehensive details in this AutoCAD DWG file, featuring floor exposed plan, elevation, and section views for fittings connecting to chilled water air handling units. This CAD drawing provides a clear and precise representation of how components are integrated, ideal for professionals seeking accurate and practical details for HVAC installations. With meticulously labeled sections and elevations, this CAD file ensures you have all the necessary information for efficient and effective implementation. Perfect for engineers and designers who need reliable CAD files for their projects, this resource simplifies your workflow and enhances your understanding of complex systems.
File Type:
3d max
File Size:
1.2 MB
Category::
Mechanical and Machinery
Sub Category::
Mechanical Engineering
type:
Gold

Uploaded by:
Eiz
Luna

