Auditorium Plan Elevation And Section DWG AutoCAD file
Description
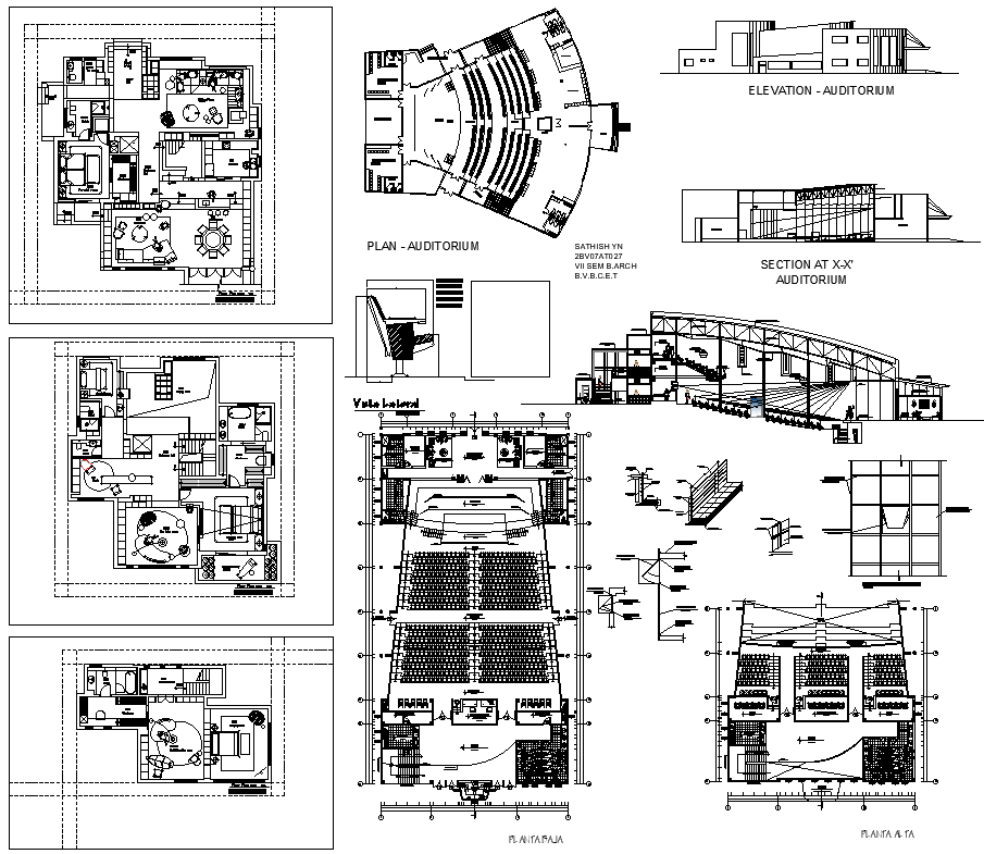
Explore our detailed Auditorium Plan Elevation and Section DWG file, designed for clear visualization and precision in architectural planning. This comprehensive CAD drawing provides accurate dimensions and structural insights for effective auditorium design. Perfect for architects and designers, this AutoCAD file includes all essential details, from floor plans to sectional views, ensuring a thorough understanding of the space. Enhance your project with our expertly crafted CAD files, facilitating efficient planning and execution. Download now for a professional approach to auditorium design.

Uploaded by:
Eiz
Luna

