AutoCAD 3BHK bungalow plan with elevation and door view
Description
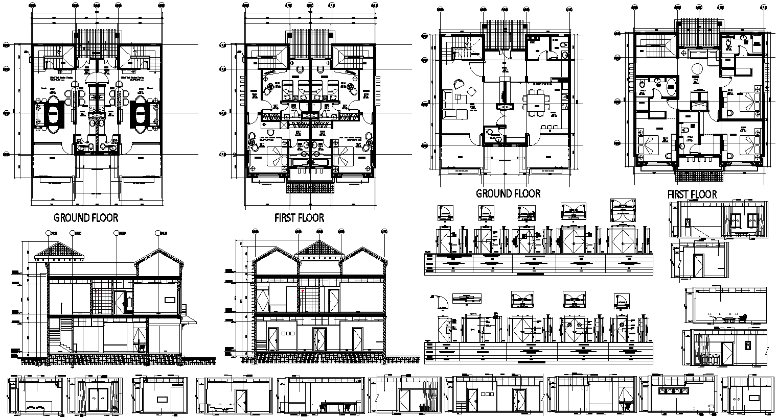
Explore a comprehensive architectural plan for a 3BHK bungalow featuring detailed ground floor and first floor layouts, elevations, and door sections. This AutoCAD drawing offers precise CAD files, showcasing every aspect of the bungalow's design, from room dimensions to exterior views. Ideal for architects and builders, the CAD drawings provide a clear and detailed representation of the home's structure, helping you visualize and execute your design with accuracy. Whether you're planning a new build or renovation, these CAD files are a valuable resource for achieving your architectural goals.

Uploaded by:
Eiz
Luna

