Architectural Conference hall AutoCAD DWG file
Description
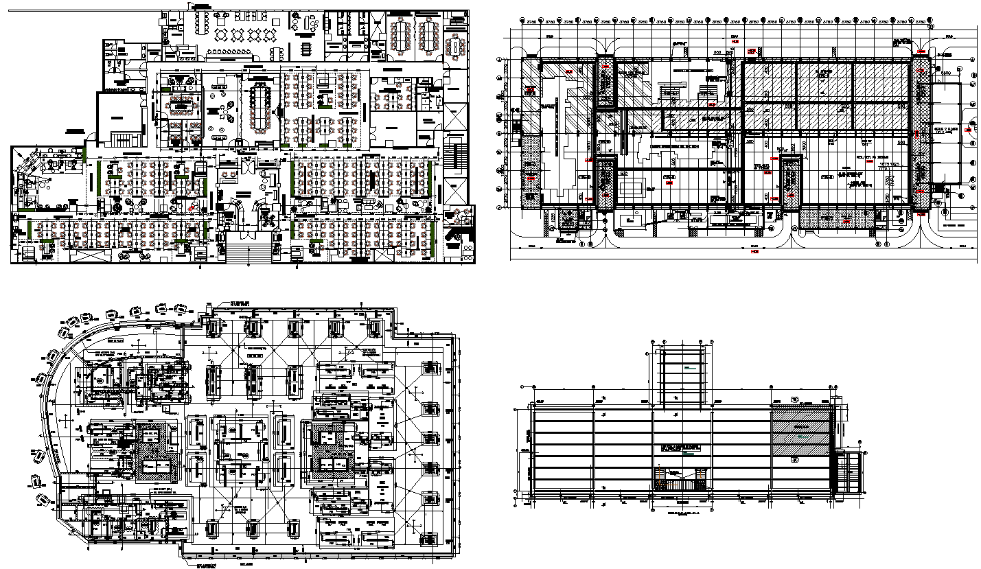
Discover the detailed Architectural Conference Hall AutoCAD DWG file, perfect for your next project. This file offers comprehensive CAD drawings, showcasing the layout and design of a modern conference hall. Whether you're an architect or a designer, these CAD files provide a clear and precise blueprint for your work. The plans include seating arrangements, stage design, and technical setups, ensuring a thorough understanding of the space. Enhance your designs with this essential AutoCAD resource, tailored for professionals seeking top-quality architectural CAD drawings. Explore the intricacies of conference hall architecture with this invaluable AutoCAD file.

Uploaded by:
Eiz
Luna

