Shed Flooring Sectional Detail - Download AutoCAD DWG
Description
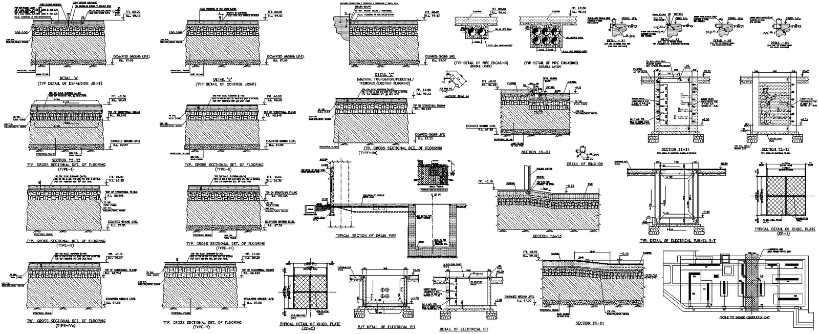
Discover a detailed section of shed flooring with this AutoCAD DWG file. Perfect for architects and builders, this CAD drawing provides a clear and precise illustration of the flooring layers and construction details. Enhance your project with professional-grade plans that ensure accuracy and efficiency. This comprehensive CAD file offers valuable insights into the materials and methods used in shed flooring, making it an essential resource for your design needs. Download this CAD file now to elevate your building plans with high-quality, reliable drawings tailored for your construction projects.

Uploaded by:
Eiz
Luna

