Commercial Complex Ground & Basement Floor Plans Drawings
Description
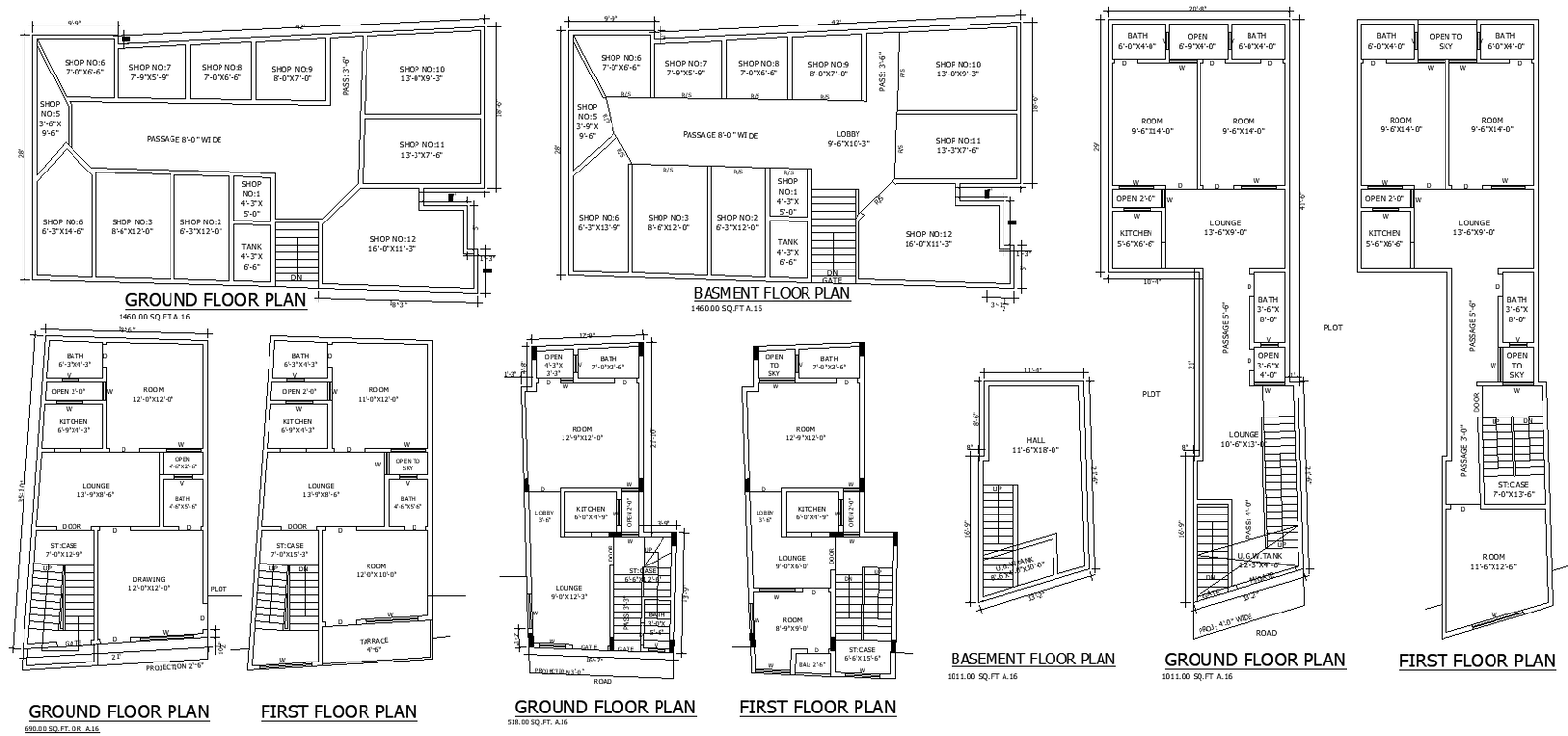
Download the Commercial Complex Ground Floor Plan and Basement Floor Plan DWG file for a detailed layout of a modern commercial space. This easy-to-use AutoCAD file includes precise CAD drawings of both floors, showcasing all essential architectural elements. Ideal for architects, designers, and builders, these CAD files provide a comprehensive guide for planning and construction. Enhance your project with these detailed plans, ensuring accuracy and efficiency in your design process. Perfect for professionals seeking high-quality, ready-to-use resources for commercial building projects

Uploaded by:
Eiz
Luna

