AutoCAD layout of 2RK house design for 56’x18’ plot
Description
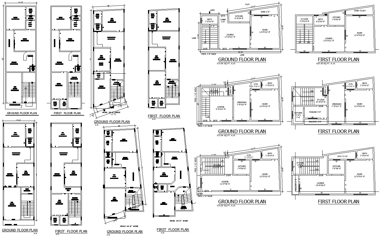
Explore our detailed 56' x 18' 2 RK house plan, designed for both ground and first floors. This AutoCAD DWG file provides comprehensive layout insights, including room dimensions and floor arrangements, making it perfect for architects and builders. Whether you’re looking for precise CAD drawings or need a reliable CAD file for your next project, this plan offers clear and practical design details. Easily integrate it into your workflow to bring your residential project to life with accuracy and ease.

Uploaded by:
Eiz
Luna

