4BHK Villa Ground & First Floor Plan Detailed DWG CAD DWG
Description
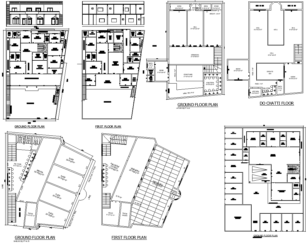
Explore the detailed 4BHK villa plans with this AutoCAD DWG file, featuring both Ground Floor (G.F) and First Floor (F.F) layouts. This CAD drawing showcases spacious and thoughtfully designed rooms, ensuring a perfect blend of comfort and functionality. Ideal for architects and home designers, this file provides clear and precise floor plans to help visualize and plan your dream villa. Whether you’re an industry professional or a homeowner, this CAD file is a valuable resource for understanding and creating detailed villa layouts. Download now to get started on your next architectural project.

Uploaded by:
Eiz
Luna

