Residential DWG plan of ground to second floor layout
Description
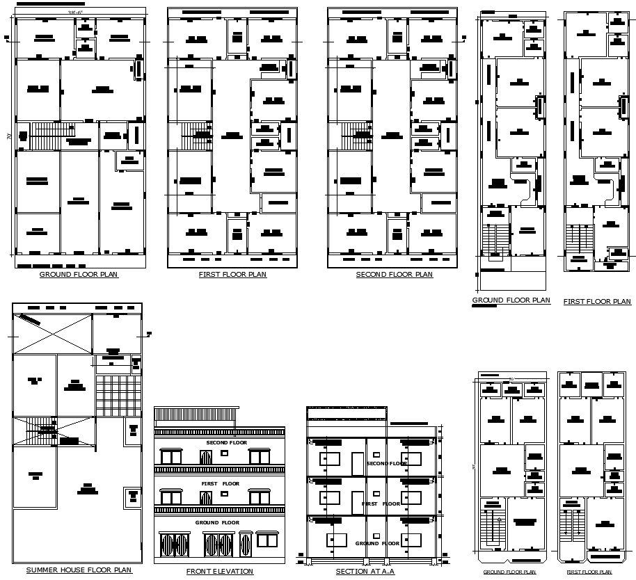
Ground, First, and Second-Floor House Plan Architecture AutoCAD DWG file, offering detailed architectural designs for 3 and 4 BHK layouts. This DWG file includes precise elevation and section details, making it an ideal resource for architects, designers, and builders. Each floor plan is meticulously crafted, featuring spacious bedrooms, functional kitchens, and inviting living areas. Whether you're designing a new home or renovating an existing one, this AutoCAD file provides the essential information needed to create a modern, efficient, and aesthetically pleasing residential space. The detailed sections ensure accurate construction and alignment, while the elevations provide a clear visual representation of the exterior facade. Perfect for residential projects of any scale, this DWG file is a valuable tool in ensuring your designs meet both functional and aesthetic standards. Download this file to bring your architectural vision to life with precision and clarity.

Uploaded by:
Eiz
Luna

