2-story house plan with shop layout in DWG AutoCAD file
Description
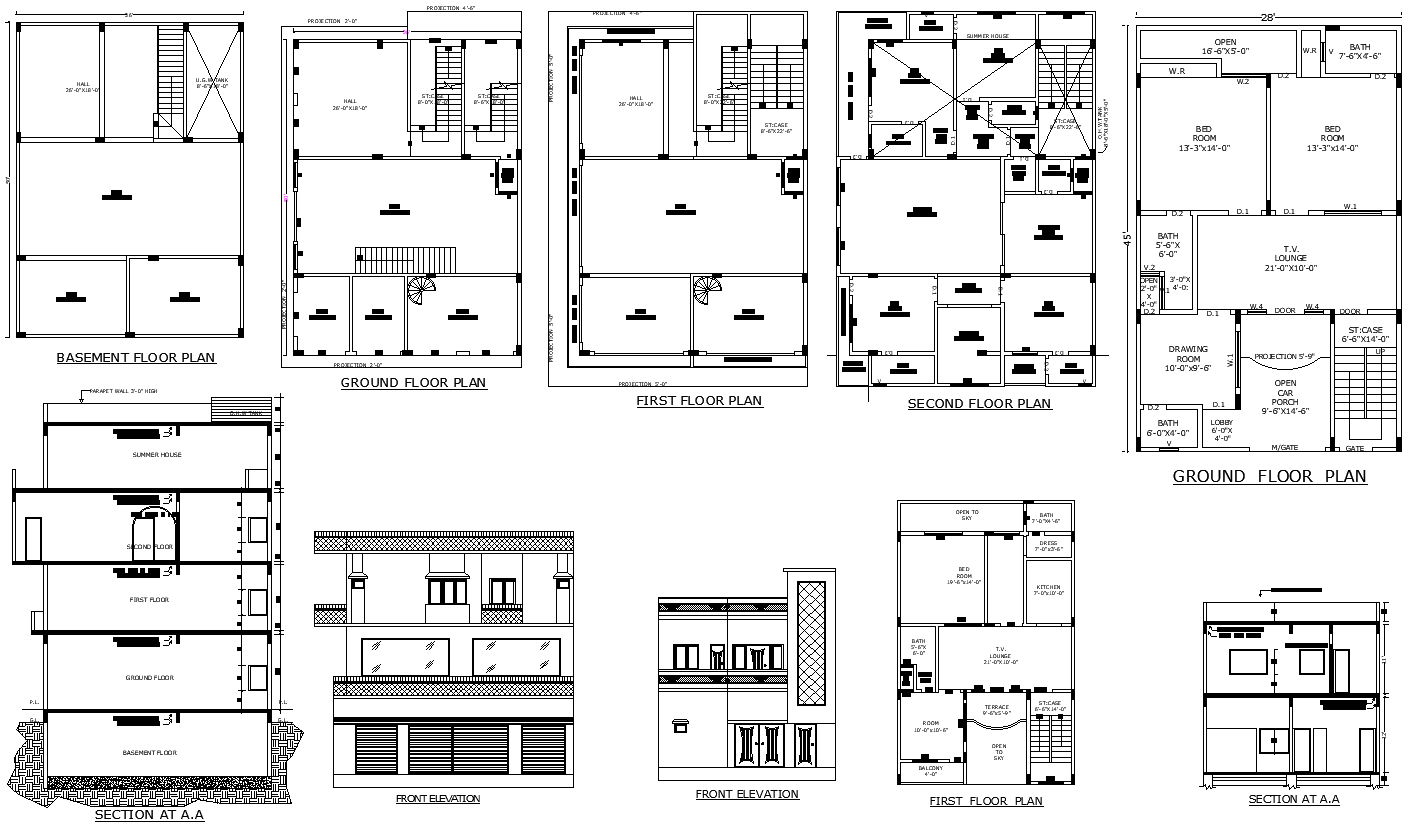
The comprehensive 2-story House Plan with Ground and First Floor Shop Design DWG Download. This AutoCAD file includes detailed architectural plans for a residential and commercial layout. The design features two spacious bedrooms, a well-appointed hall, a modern kitchen, and bathrooms. It also includes areas for open sky views, a welcoming lobby, and dedicated parking spaces. Ideal for architects and builders, this DWG file provides precise floor plans and elevations to support the effective design and construction of both residential and retail spaces.

Uploaded by:
Eiz
Luna

