AutoCAD Residential Plan with Area and Two Floor Layout
Description
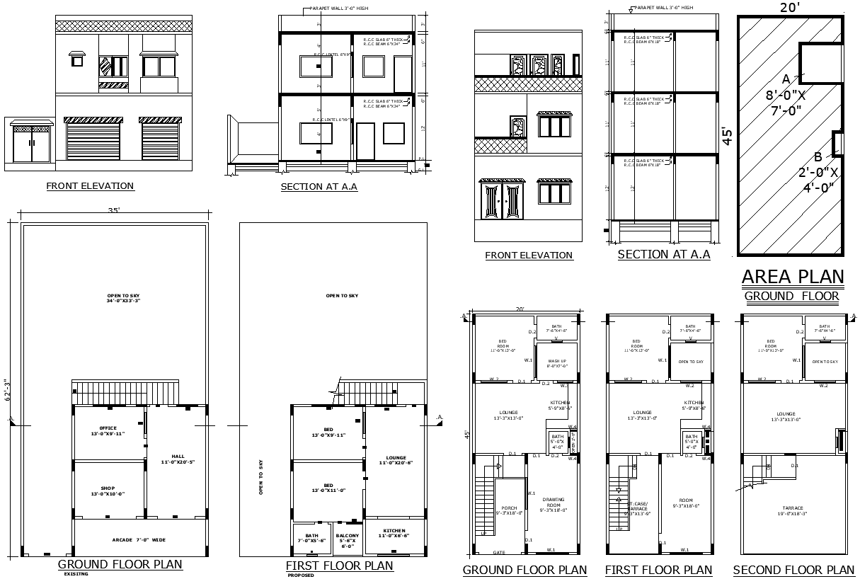
Explore detailed Residential House plans with Two Layouts, Floors, and Area Details in AutoCAD DWG format. This comprehensive DWG file includes intricate designs for a residential house featuring a hall, kitchen, and bedroom. It provides clear layouts for each floor, complete with area details and open sky views. Ideal for architects, builders, and homeowners, this AutoCAD drawing ensures accurate planning and efficient design execution. Download now for a detailed view of both layouts and key architectural elements in your residential project.

Uploaded by:
Eiz
Luna

