AutoCAD DWG 3BHK Home Plan with Detailed Layout Design
Description
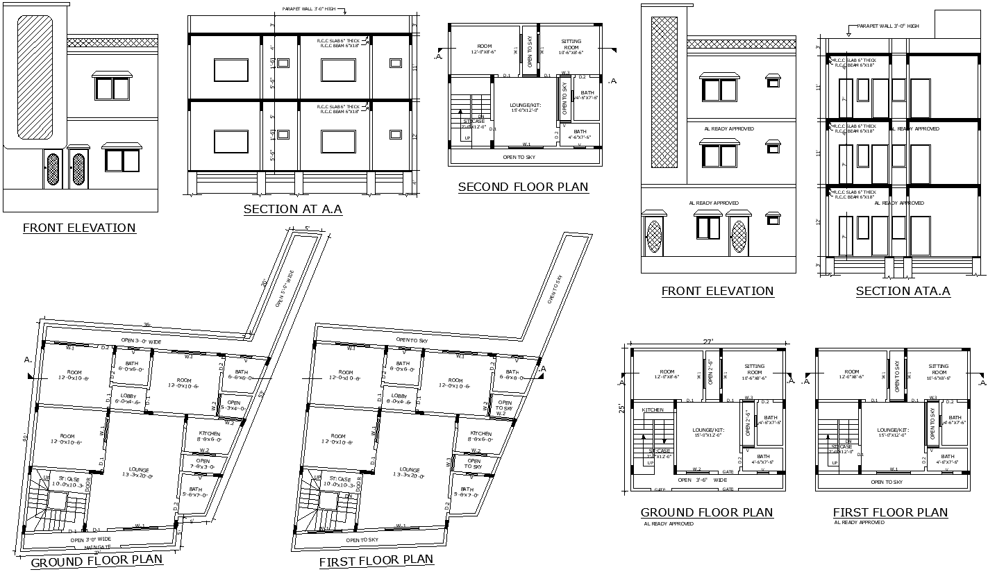
Explore our comprehensive 3 BHK Residential House Plan with Detailed Layouts in DWG format. This AutoCAD file includes two distinct layouts featuring a detailed design of ground and first floors. Each layout is meticulously crafted to showcase essential elements such as a spacious hall, well-planned kitchen, and comfortable bedrooms, all complemented by an open sky design for enhanced natural light. Perfect for architects and home builders, this DWG file offers a clear and precise visual representation to assist in the planning and execution of your residential project. Download now to access high-quality, editable drawings tailored to your design needs.

Uploaded by:
Eiz
Luna

