Double Story Apartment Floor Layout in DWG Drawing
Description
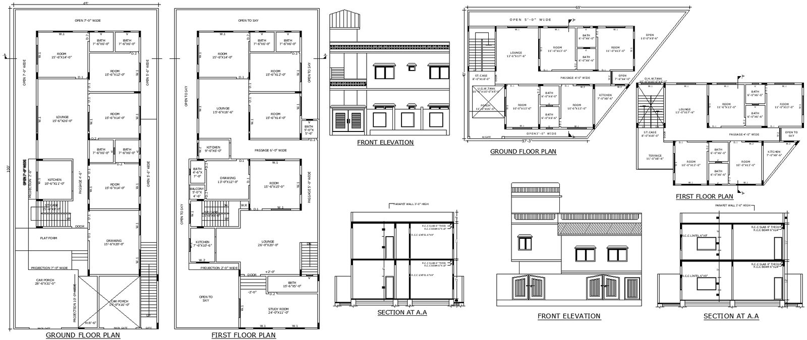
Discover a comprehensive Double-Story Apartment Design with detailed floor and layout plans in this DWG AutoCAD drawing. This file includes two distinct house layouts that showcase diverse architectural styles and functional arrangements. Whether you're looking for a 4 BHK house plan or need specific design details for a kitchen, hall, or study room, this drawing provides everything you need. The plans feature well-thought-out spaces designed for modern living, including ample room for relaxation, work, and social activities. Explore elevation and section details that give a complete view of the apartment's design from different perspectives, ensuring a clear understanding of the building's structure and aesthetics. Perfect for architects, builders, and home enthusiasts looking for a versatile and detailed reference for apartment and house planning. Download now to add a valuable resource to your architectural projects and design inspirations.

Uploaded by:
Eiz
Luna

