House Plan Drawing Layout AutoCAD DWG File Download
Description
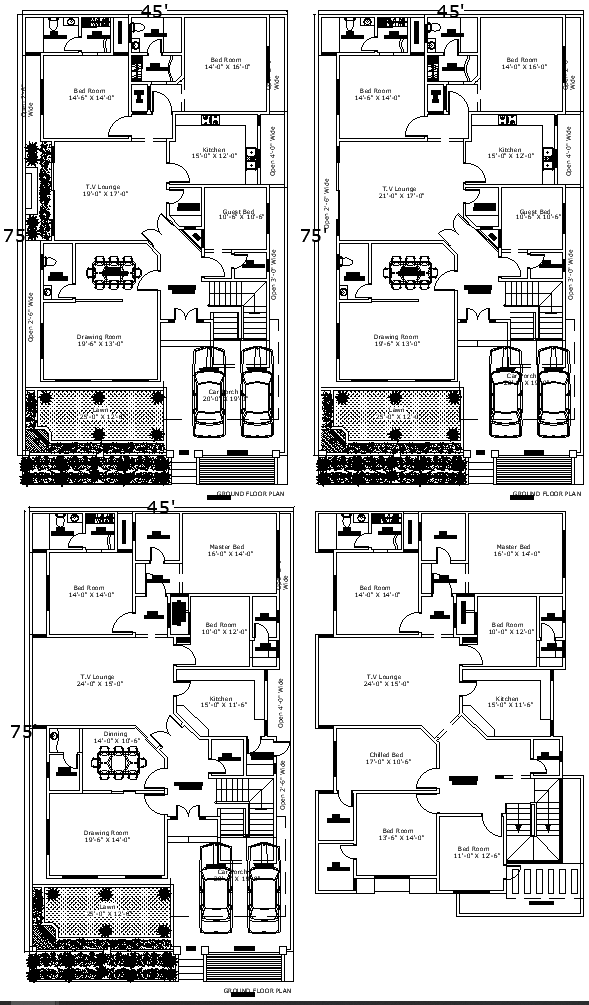
House Plan Drawing Layout AutoCAD DWG File Download, featuring detailed designs for a versatile 3BHK home. This comprehensive DWG file includes two distinct house layout plans, offering a complete view of both ground and first-floor details. The design accommodates 3 bedrooms, a dedicated parking area, and thoughtfully arranged living spaces, ensuring optimal functionality and comfort. Ideal for architects, builders, and homeowners, this file provides precise measurements and layout options, making it easier to visualize and execute your residential project. Whether you're designing a new home or renovating an existing one, these detailed AutoCAD drawings offer valuable insights and flexibility. Download this file to access high-quality, editable plans that cater to modern living needs and preferences, enhancing your home design experience.

Uploaded by:
Eiz
Luna

