Simple House Shop and Godown Layout in AutoCAD DWG File
Description
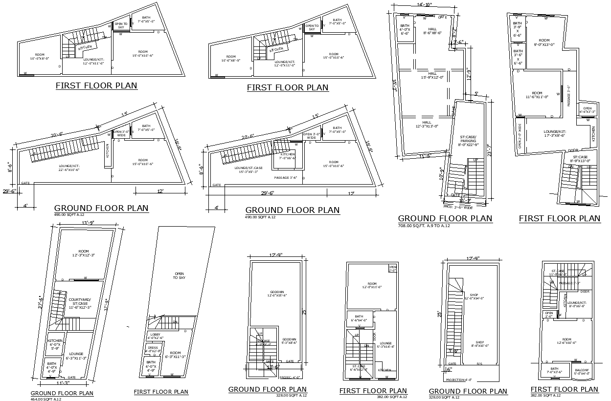
Comprehensive AutoCAD DWG file featuring a simple yet detailed layout design for houses, shops, and godowns. This file includes multi-ground and first-floor details, offering a variety of spaces like halls, kitchens, bedrooms, and bathrooms, all thoughtfully planned for optimal functionality. The design also features open sky areas, providing natural light and ventilation, along with a spacious lobby for a welcoming entrance. Perfect for those looking to create versatile living and commercial spaces, this DWG file provides everything you need to visualize and plan your next project. Download now to explore this practical and efficient layout design in AutoCAD.

Uploaded by:
Eiz
Luna

