2BHK Residential Plan with Shop Layout in DWG Drawing
Description
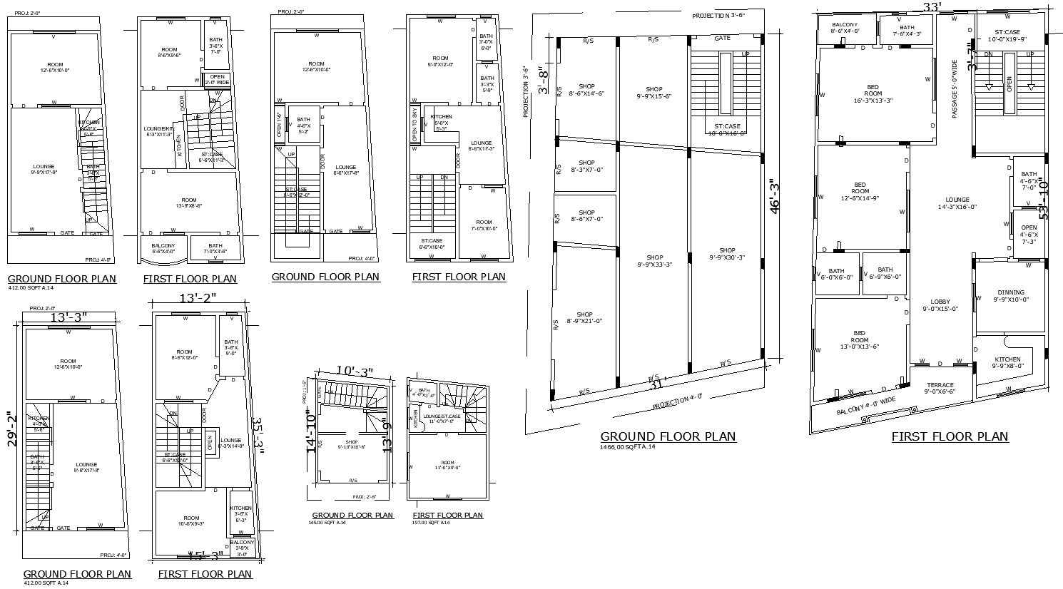
2BHK Floor Plan with Shop Design DWG Download, perfect for architects and designers looking for versatile layout options. This comprehensive CAD file includes five different layout types, offering detailed architectural plans for both residential and commercial spaces. Explore ground floor shop layouts and detailed 2BHK house designs, featuring well-planned spaces that include living areas, kitchens, bedrooms, and bathrooms. Whether you are designing a multi-purpose building or planning a new development, this DWG file provides everything you need for efficient and effective design. Download now to enhance your architectural projects with precise floor plans and shop layouts that cater to various needs and preferences.

Uploaded by:
Eiz
Luna

