Residential Plan in DWG with Ground Floor Godown Design
Description
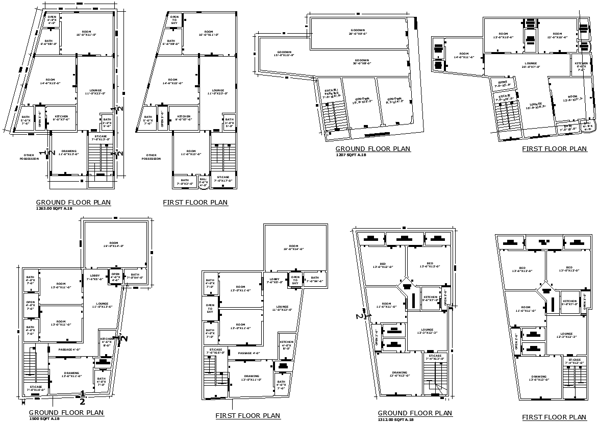
This is an AutoCAD DWG drawing file of detailed house plans and ground floor godown designs for uploading. Four different types of house plans in one file for download: 3BHK house plans with so many options with a view to satisfying all different requirements. The general design details do include such points as open sky areas, spacious lobbies, and balconies, completing the basic space requirements of the accommodation. Ideal for architects, builders, and home designers, this DWG file is full of clear and important information regarding residential and commercial space planning, helping one to visualize and plan properly for house and godown structures

Uploaded by:
Eiz
Luna

