AutoCAD Layout for Lawn Terrace Parking House Design
Description
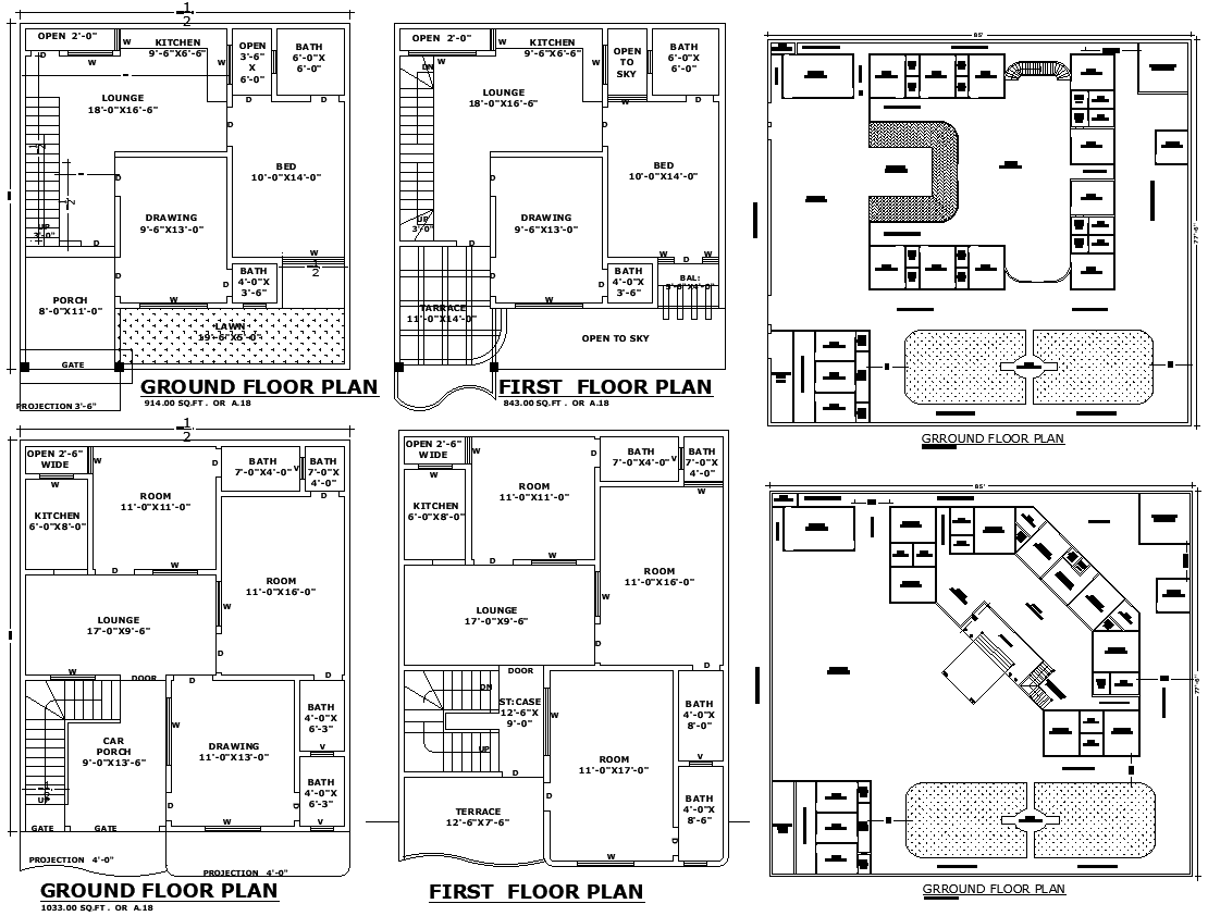
This "Open Concept House Plan with Terrace, Lawn, and Parking DWG" will be a matter of great interest to anyone keen on knowing how the modern concept of residential design has adapted in recent times. Detailed plans for 1BHK and 2BHK house layouts are given in this AutoCAD drawing that gives innovative open-concept designs to maximize space and bring in much natural light. Ideal for homeowners, architects, and designers, this DWG presents three different layout options to suit the myriad lifestyles and needs of modern-day living. Each of the house plans has a well-planned arrangement of rooms, including spacious living areas, kitchens, bedrooms, and beautifully designed terrace space for outdoor relaxation. The lawn and parking area add functionality and appeal to the house plans, making them ideal in both urban and suburban settings. If one wants to build a new house or get an old one remodeled, all the information will be included in these full-scale CAD drawings. Feel free to explore your creative options and download this highly detailed DWG format file now for sparking inspiration into your next creative project.

Uploaded by:
Eiz
Luna

