Apartment Ground Floor Shop And 4BHK First Floor Plan AutoCAD DWG
Description
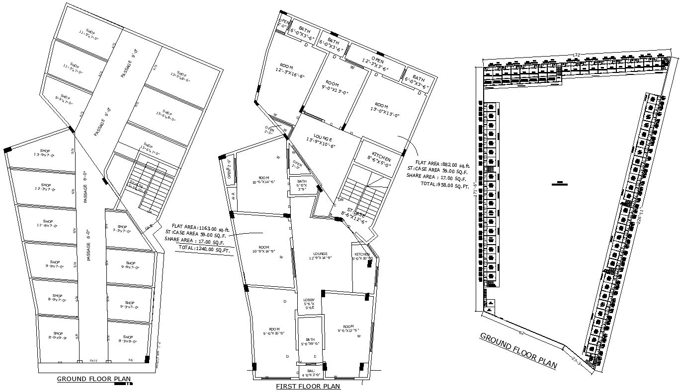
Detailed AutoCAD DWG drawings of apartment design with a ground floor shop and a 4BHK layout on the first floor are presented herein. A set of highly detailed plans showing all details in the floors is included. The ground floor is designed to accommodate a versatile shop space that can be used for any sort of commercial activity, while the first floor features a spacious 4BHK residential layout complete with all modern amenities. The architectural drawings in these DWG files feature room layouts, open spaces, and other key design elements. These CAD drawings will form a great basis for an architect, builder, or real estate developer to create practical, functional apartment buildings with commercial and residential spaces. Perfect for immediate download, get professional design schematics for your next project.

Uploaded by:
Eiz
Luna

