Modern 3 Floor House Plan with Section & Elevation DWG File
Description
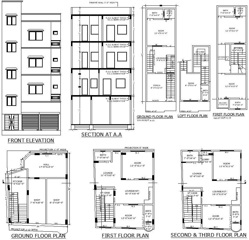
Below is a detailed AutoCAD DWG download for a 3-floor house design, complete with elevation and section views. The following file provides full architectural plans for ground floor shops and residential first, second, and third floors. In this design, a 2BHK house plan has been accommodated on each residential floor with much minute attention to space and functionality. The architecture is well and clearly communicated in this DWG file, suitable for architects, builders, and homeowners who want to construct a house with detailed, multi story floor plans that integrate shop space. Add some flair to your next project with this multi-functional design that combines practical shop space with a comfortable, three-tier living space. It can be used for both commercial and residential purposes, and it is an AutoCAD drawing that ensures a smooth process of construction since all sections and elevations are well revealed.

Uploaded by:
Eiz
Luna

