Electrical Control Panel Enclosure Construction and Layout Details
Description
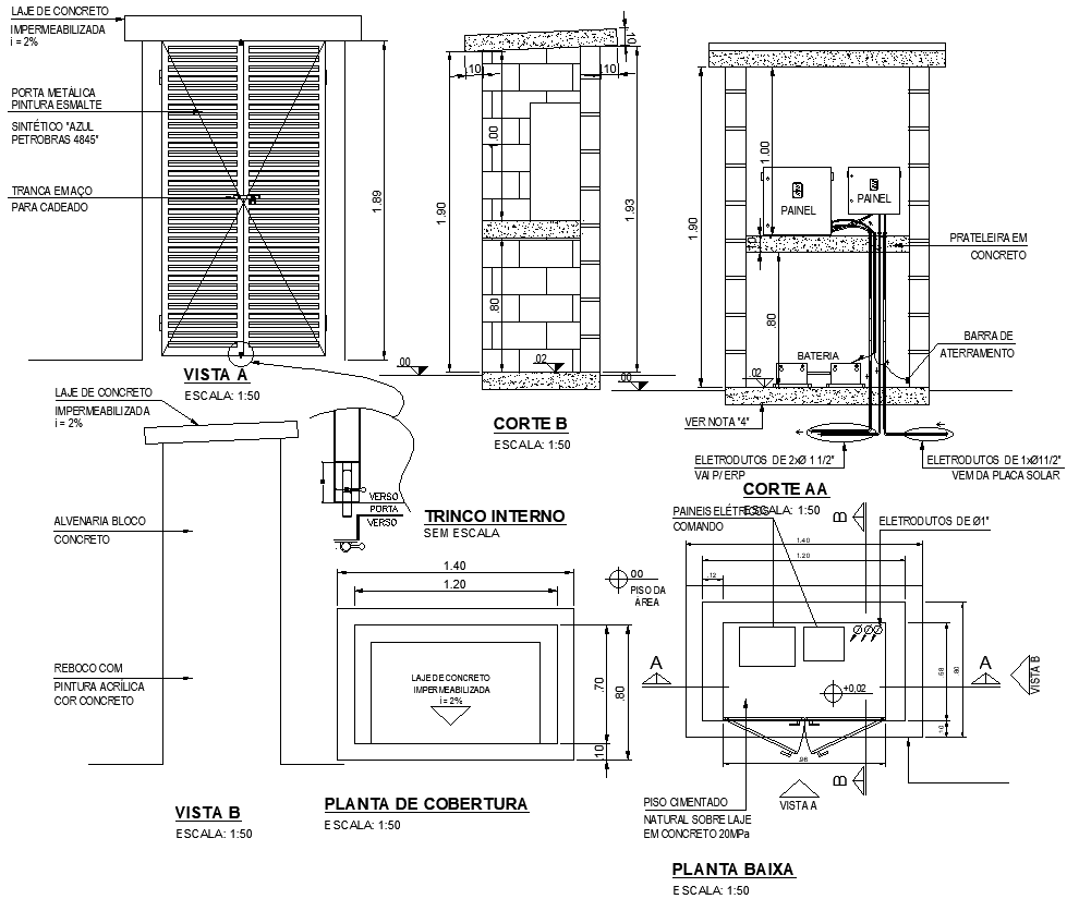
This technical drawing presents detailed construction and layout information for an electrical control panel enclosure designed for outdoor or service-area installation. The drawing aligns with Architecture Electrical Plans by showing precise dimensions, material layers, and placement logic required for electrical housing structures. Elements such as concrete base, masonry walls, waterproof slab, and access door configuration are clearly represented to explain enclosure construction. Height references, internal clearances, and component positioning help ensure safe and functional installation of electrical equipment within the enclosure.
The drawing also supports Electrical Machine planning by illustrating internal arrangement of electrical panels, battery placement, grounding bar positioning, and conduit routing. Section views provide clarity on vertical organization and internal spacing required for operation and maintenance. In addition, the layout connects with Structure Drawing, where construction detailing such as concrete thickness, block masonry, and slab slope are essential for durability and protection. The drawing further reflects Construction Details by documenting finishing layers, access mechanisms, and internal support elements. Overall, this drawing is useful for understanding electrical enclosure construction, structural coordination, equipment protection, and electrical system organization within controlled service installations.
File Type:
DWG
File Size:
344 KB
Category::
Electrical
Sub Category::
Architecture Electrical Plans
type:
Gold

Uploaded by:
Eiz
Luna

