Duct and Emergency Signaling Plate Installation Details AutoCAD DWG
Description
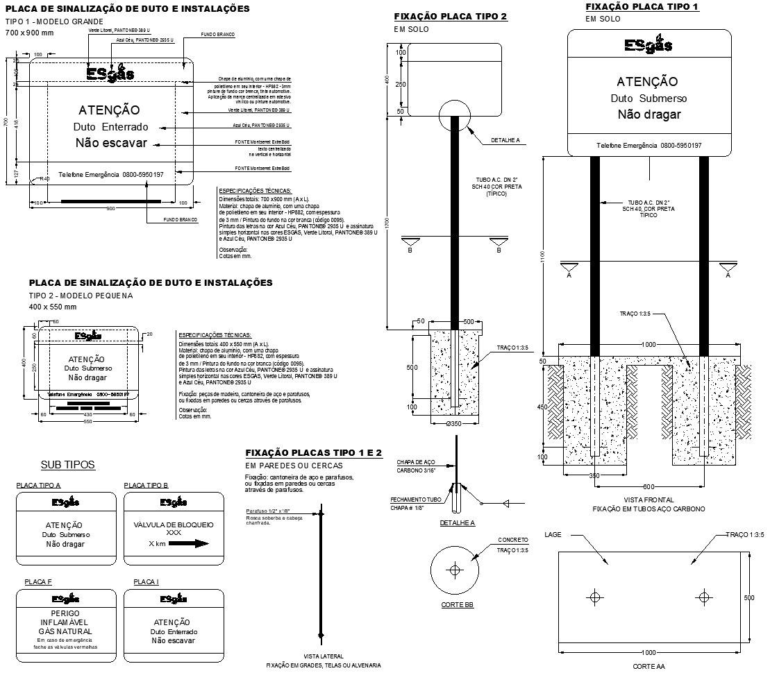
This AutoCAD DWG drawing includes detailed design installation for duct and emergency signaling plates. The overall design provides specific details on how duct systems should be laid out and the positions where to place emergency signaling plates to ensure maximum safety and efficiency in the building infrastructure. The file accurately represents the ductwork, such as cross-section views, dimensions of the ducts, and the materials applied. It covers the installation of emergency signs, showing proper orientation and visibility for enhanced safety measures. This DWG is perfect for architects, engineers, and contractors to make the design and installation process of ducts and emergency systems in buildings easier. Download AutoCAD drawings, which are of high quality and editable to quickly implement them into any plan and scheme for residential, commercial, or industrial buildings. Comply with the standards for safety while optimizing your workflow by using these essential AutoCAD details.
File Type:
DWG
File Size:
296 KB
Category::
Dwg Cad Blocks
Sub Category::
Cad Logo And Symbol Block
type:
Gold

Uploaded by:
Eiz
Luna

