Installation Section Details for Gate Plate AutoCAD DWG File
Description
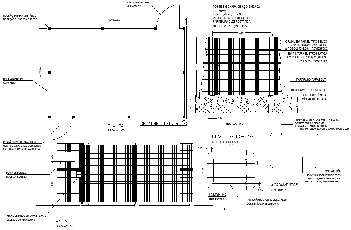
Installation Section Details for Gate Plate The AutoCAD DWG file download below shows a small gate model for the sign, the RNO belt with the secure design to put in a padlock or lock. This dwg has pretty accurate section views and is very useful for architects, engineers, and contractors in most of the gate installation projects. This file contains highly accurate measurements, technical specifications, and structural details to ensure the gate plate is installed correctly and safely. Be it for residential, commercial, or industrial purposes, this AutoCAD drawing guarantees reliability and clarity with a view to securing the effective installation of gates. Compatible with all versions of AutoCAD, it is an essential resource that you will want to have for your CAD library. Indirectly included keywords: AutoCAD files, CAD drawings, CAD files, 2D drawings, and DWG files.

Uploaded by:
Eiz
Luna

