Construction Column Plan with Section Views AutoCAD DWG
Description
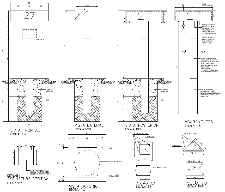
AutoCAD DWG Download of Construction Column Plan with Section Views: It shows the detailed side, front, and back view designs. Below is the complete DWG download for the above construction column layout, section details with dimensions, and specification of materials to be used in the work. All these drawings will help the architect, engineer, and builder create an as-built column layout, provide structural stability, and eliminate design errors altogether. From residential to commercial purposes, this AutoCAD drawing is suitable for all kinds of construction projects and works with all versions, thus helping to enrich your CAD library. Give a touch of perfection and accuracy to the construction planning process with this premium DWG file. Keywords indirectly included: AutoCAD drawings, CAD drawings, CAD files, 2D drawings, and DWG files.

Uploaded by:
Eiz
Luna

