3BHK Bungalow Design Plan AutoCAD DWG File
Description
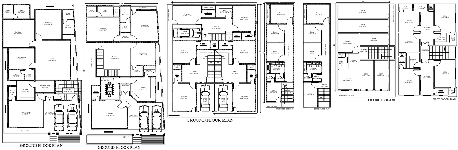
Here is the detailed 3BHK Bungalow Design Plan with three different layout options, planned in a way to keep flexibility and functionality together. Ground-floor and first-floor plans are attached herewith, along with room details, spacious parking, and an open sky for better daylight and ventilation. This CAD drawing will be helpful for architects, builders, and designers, and it offers correct and editable layouts to suit different residential requirements. Whether it's a modern 3BHK bungalow design or ideas needed for the project, this is an all-inclusive AutoCAD design meant to fill in and build up your dreams.

Uploaded by:
Eiz
Luna

