AutoCAD Plan of House Front Elevation and Section Views
Description
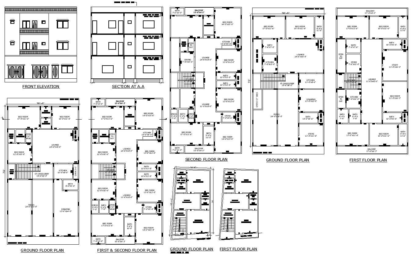
House Front Elevation and Section Design with 3 Layouts in AutoCAD DWG format, with elaborative ground, first, and second-floor plans. It is a drawing of rooms, a hall, a kitchen, a balcony, open sky areas, and bathrooms that are fully designed, giving a good vision of how the structure is arranged. This DWG is ideal for architects, engineers, and designers since precision and clarity are successfully maintained to present the front elevation and section of the house. Detailed drawings to help one design functional and aesthetic spaces in homes for new projects or for inspiration. Download now and enhance your design portfolio with top-class architectural plans.

Uploaded by:
Eiz
Luna

