Gas Pipeline Plan Design with Section Plan Details AutoCAD DWG
Description
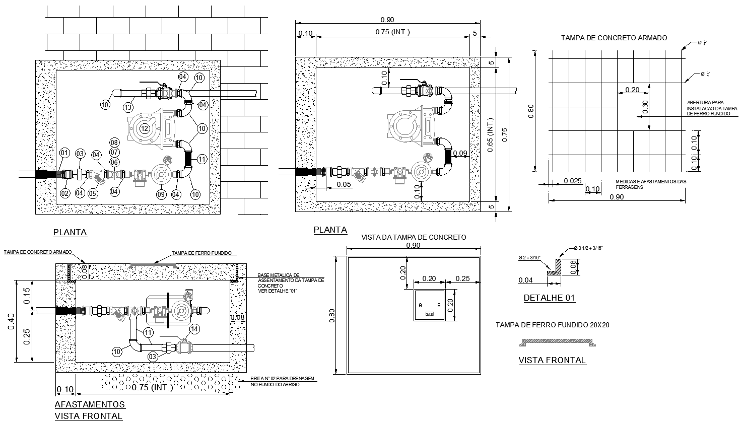
The following are the details of section plans for the Gas Pipeline Plan Design AutoCAD DWG Download, availing you of comprehensive and accurate pipeline design solutions. These plans and section views are complete, providing full details of the gas pipeline layout, pipeline routes, junctions, and all critical connections. High-quality design elements, precision in measurement, and all relevant structural details ensure successful installation and management of gas pipelines. This AutoCAD drawing is a must for all engineers, architects, and construction professionals, as it provides them with tools that ensure their gas pipeline project meets set standards in terms of safety, efficiency, and other building codes. Download it now and get instant access to precise, scalable designs for your gas pipeline projects.
File Type:
DWG
File Size:
363 KB
Category::
Dwg Cad Blocks
Sub Category::
Autocad Plumbing Fixture Blocks
type:
Gold

Uploaded by:
Eiz
Luna

