Multi-Storey House DWG Plan with Ground and First Floor
Description
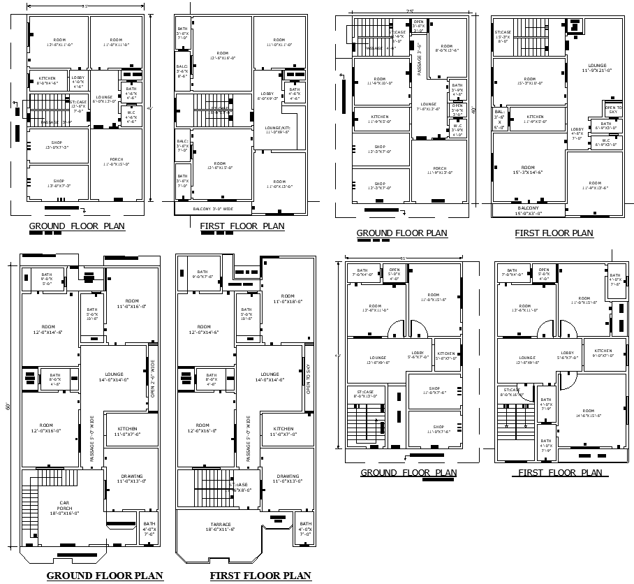
Malti Ground and First Floor House Details AutoCAD DWG Download with a complete layout plan presenting 4 various types of layout designs. This detailed drawing includes a ground-floor shop plan with basic spaces like the hall, kitchen, bedroom, bathroom, and balcony. The design also allows for an open sky feature to allow more natural light and proper ventilation. Therefore, any architect, builder, or home dweller who would want real measurement and scalable design for them to be able to visualize and implement the functionality and aesthetic appeal taken into consideration might find this file very useful. Be it a residential project or with the integration of commercial spaces, this AutoCAD DWG file helps one make use of space effectively with modern design elements. Download now and get expert-level detailed floor plan information for the ground and first floors.

Uploaded by:
Eiz
Luna

