Luxury Hotel Layout Design AutoCAD DWG File
Description
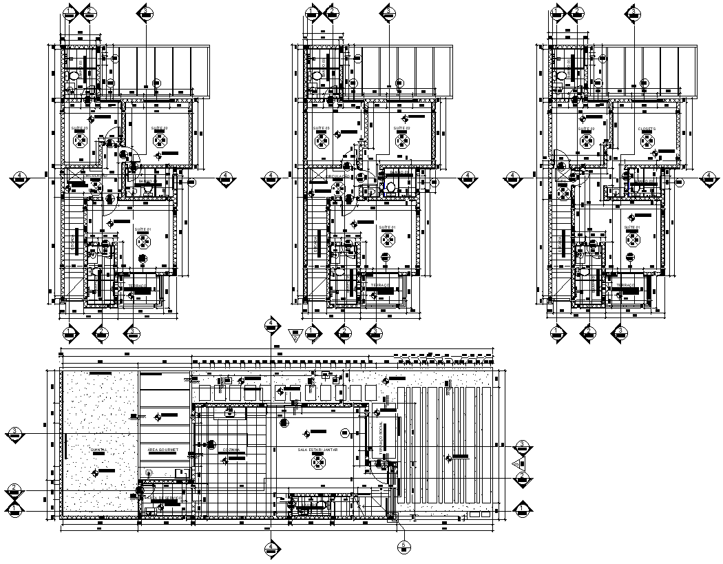
Download this AutoCAD DWG file to see a luxury hotel layout design with comprehensive plans featuring room, hall, and bathroom designs with precise measurements. The given high-resolution CAD file is ideal for architects, designers, and hotel planners who wish to create or refine luxury hospitality spaces. The comprehensive layouts will come complete with detailed, accurate measurements and extended annotations of various hotel areas that include guest rooms, elegant hallways, and luxurious bathrooms. These DWG files will not only make the planning and actual construction smooth but also effective; every element in the luxury hotel should be thoughtfully placed and put to maximum use. Be it developing new luxury accommodations or renovating the existing ones, this resource shall definitely provide the clarity and precision one needs for superior designing. Access these skillfully prepared AutoCAD files to take your hotel design to the next level by offering unparalleled guest experiences with sophistication and functionality in layout.

Uploaded by:
Eiz
Luna

