30ftx45ft Shop Layout with First Floor House in DWG File
Description
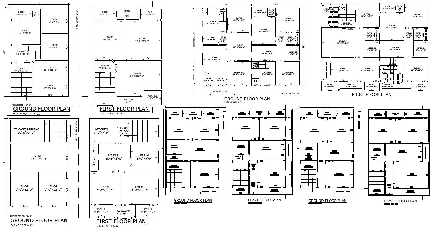
Ground floor shop with first-floor house plan 30-45 ft in AutoCAD DWG Download This is a miscellaneous download file that includes 5 various layout options that are very useful for architects, designers, and builders for commercial and residential purposes. In the given plan, the layout for the shop on the ground floor is designed in such a way that the space is utilized effectively, while the first-floor house plan comprises a hall, kitchen, a number of rooms, bathrooms, a balcony, lobby, and open sky for ventilation and light. Each and every small detail has been discussed minutely in the layouts for their measurements and annotation in order to ensure proper planning and execution. Be it the design of a mixed-use property or separate commercial and residential spaces, this DWG file will bring clarity and precision to produce high-quality results. Take your project design process to the next level with these professional-grade resources, ensuring that functional and aesthetic elements work together in complete harmony. Download now and make your layout planning easier to achieve outstanding results.

Uploaded by:
Eiz
Luna

