Foundation, Column, And Beam Framing Layout Details AutoCAD DWG
Description
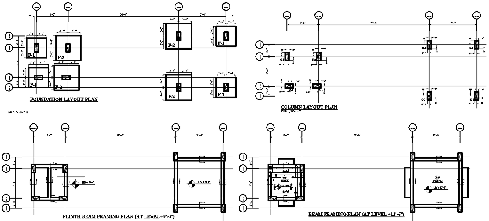
A more detailed Foundation, Column, and Beam Framing Layout Plan is ready in the AutoCAD DWG file. The drawing also precisely depicts, with technical specifications details of layout, column placements, and beam framing structures concerning foundation types. These specific plans prove useful for practicing architects, engineers, and construction professionals to ensure that one gets to design the structural works on any residential, commercial, or industrial setup accurately. The DWG file holds high-class drafting, accompanied by explicit measurements, making it easy to implement and modify. Whether you are planning a minor renovation or a major construction project, these layout details provide the reliability and accuracy you need to achieve a stable and efficient build. Download this critical DWG file and give your project the structural integrity it needs to have expertly designed foundation, column, and beam framing plans.

Uploaded by:
Eiz
Luna

