Pipeline Connection Calculation Drawing Details AutoCAD DWG File
Description
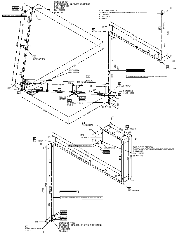
Pipeline Connection Calculation Drawing Details in AutoCAD DWG file- Check out our carefully designed DWG file that contains considerable amounts of calculations with detailed drawings about pipeline connections that ensure the right and efficient pipeline system design. This file is exclusive for engineers, project managers, and construction personnel to enjoy clear, high-quality images and accurate technical specifications. The AutoCAD format is designed to ensure all pipeline layout elements are incorporated into your projects seamlessly for optimal performance. They thus represent the proper carrying out of new installations as well as modifications through detailed drawings aimed at proving the efficiency and reliability of pipeline systems. Download now and upgrade your project with expert-grade pipeline connection calculations and design details.

Uploaded by:
Eiz
Luna

