School Ground Floor Layout Plan Design AutoCAD DWG
Description
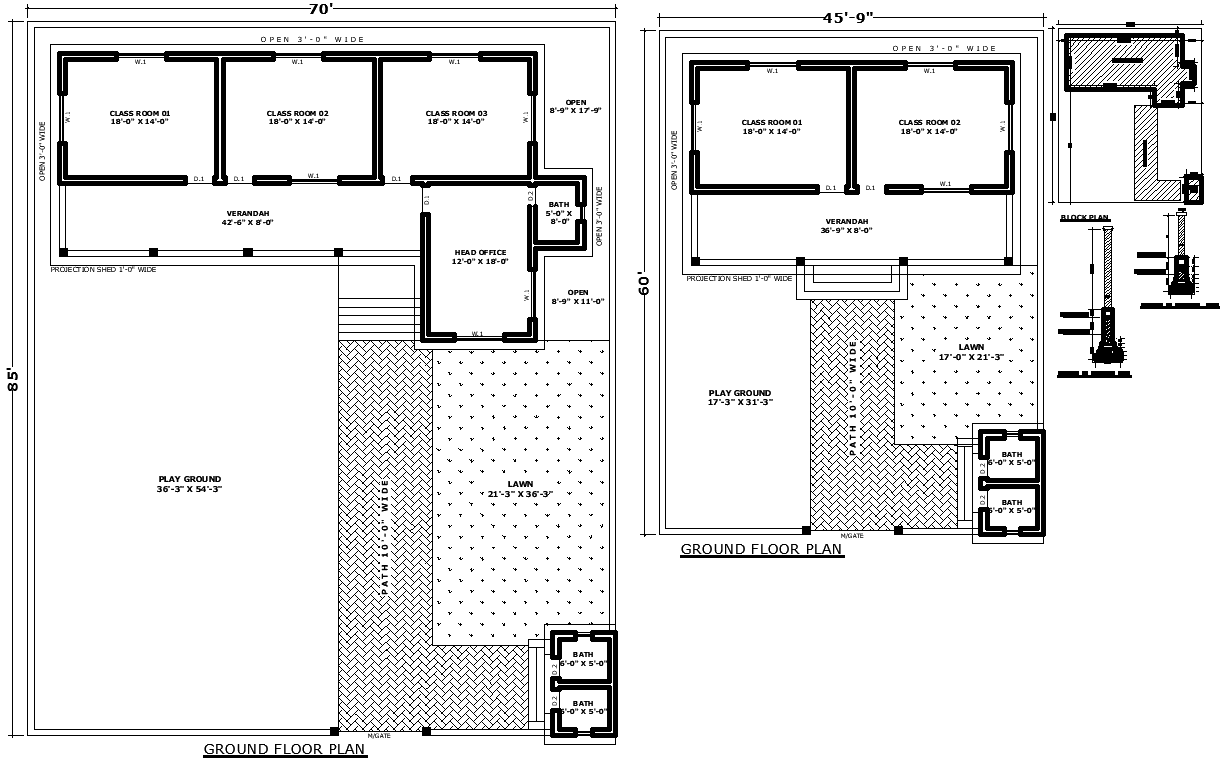
Explore School Ground Floor Layout Plan Design in AutoCAD DWG. This is an extremely detailed DWG for a school's ground floor layout, featuring the precise architectural design and spatial arrangements that are specifically suited to educational settings. This plan includes configurations for classrooms, administrative areas, common space, and essential facilities, for efficient and functional designing. Perfect for architects, school planners, and construction workers, the AutoCAD drawing provided here offers clear high-quality visualization and technical specifications necessary for proper implementation and meeting building standards. The plan is important for the efficient optimization of uses of the ground floor's usability and overall design, whether starting a new or renovating an existing space. Download now to include professional-grade school ground floor plans in your project.

Uploaded by:
Eiz
Luna

