Complete Electrical Layout Design View in AutoCAD DWG Drawing File
Description
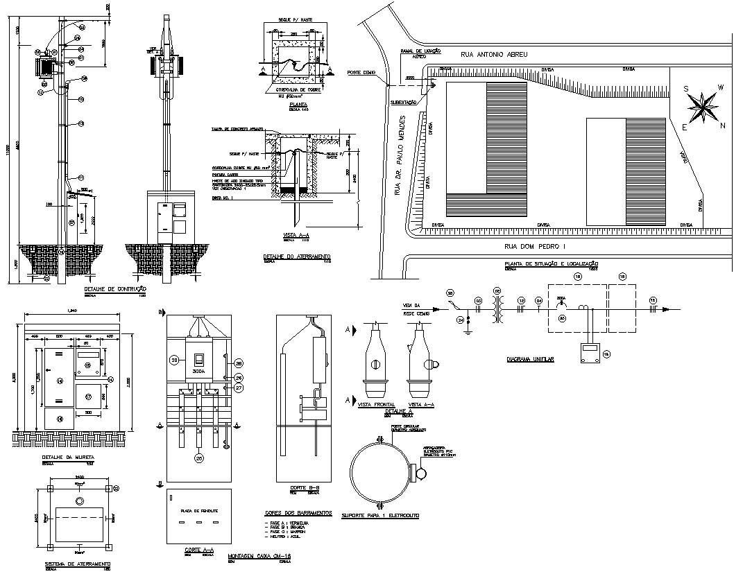
Download Now this complete Electrical Power Construction Details available in AutoCAD DWG. The drawn DWG file contains all construction engineering prints in electrical power systems, which gives you the information necessary to properly design and install such a system. There are details in the layout of wires and conduit routing, along with panel locations, power distribution systems, and other technical specifications of various components included in the system. With respect to electrical engineers, construction professionals, and contractors, this AutoCAD drawing is what they need. It clearly gives information regarding most projects' planning and implementation. With this DWG file, improve or add new electrical installations or update existing systems; it's the perfect tool for compliance with industry standards and optimized system performance.
File Type:
DWG
File Size:
6.8 MB
Category::
Electrical
Sub Category::
Architecture Electrical Plans
type:
Gold

Uploaded by:
Eiz
Luna

