Mechanical room equipment layout in CAD Drawing File
Description
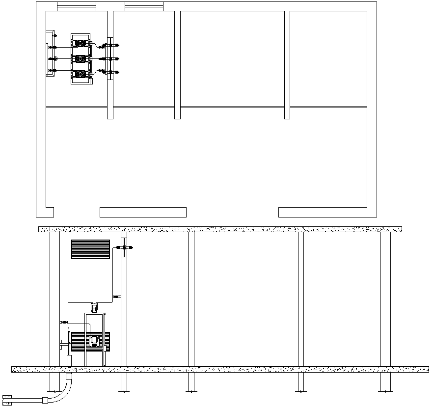
Download the detailed Mechanical Room Layout and Equipment Drawing Details in AutoCAD DWG format that will provide you with complete drawings of mechanical room layouts along with the placement of equipment with more precision in spatial arrangement. Schematics of the mechanical room are kept simple with key elements such as HVAC units, pumps, piping systems, and so on, highlighted. The auto-cad drawings are perfect for engineers, facility managers, and construction professionals. They give accurate and organized details to be useful for effective planning and installation. This file will enable clear and precise designs if you want to construct a new mechanical room or upgrade an existing one. Access professional-grade drawings that could take you forward into developing the design and implementation for your mechanical room.
File Type:
3d max
File Size:
558 KB
Category::
Electrical
Sub Category::
Architecture Electrical Plans
type:
Gold

Uploaded by:
Eiz
Luna

