Piping Connection AutoCAD DWG Drawing for Mechanical Systems
Description
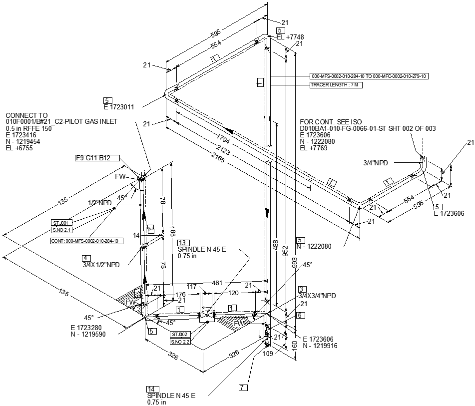
Piping Connection Mechanical Systems Technical Drawing in AutoCAD DWG Download. This detailed DWG file gives schematics for piping connections within mechanical systems to ensure proper system design and installation. The drawing includes such important components as piping size, connection details, and layout of the system, which would ensure precise representation and integration of the mechanical systems. For mechanical engineers, designers, and construction specialists, the AutoCAD drawings presented will let a piping connection be planned clearly and precisely executed. If you are to install new or upgrade the present system, this file is very crucial in achieving quality, professional results. Get detailed technical drawings today, highly professional grade, for easier project planning and execution.

Uploaded by:
Eiz
Luna

