Factory Layout Plan with Ground, First and Second Floor DWG File
Description
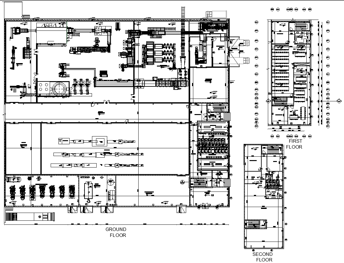
Download the detailed and enhanced factory layout plan that shows ground, first, and second floor details in an AutoCAD DWG file. Such layouts are highly invaluable for architects, engineers, and construction personnel regarding accurate scaling-up of factory buildings, along with measurements and floor plans for each level to keep the workflow free-flowing in planning and execution. This DWG file details everything from equipment placement to structural layouts that are necessary in designing a factory effectively. Either designing a new facility or optimizing an existing one, it gives you a clear and precise way in helping you meet project goals. Download now for detailed floor-by-floor breakdowns of factory layout plans.
File Type:
DWG
File Size:
14.8 MB
Category::
Mechanical and Machinery
Sub Category::
Factory Machinery
type:
Gold

Uploaded by:
Eiz
Luna

