2BHK Ground Floor Home Design Layout in AutoCAD DWG File
Description
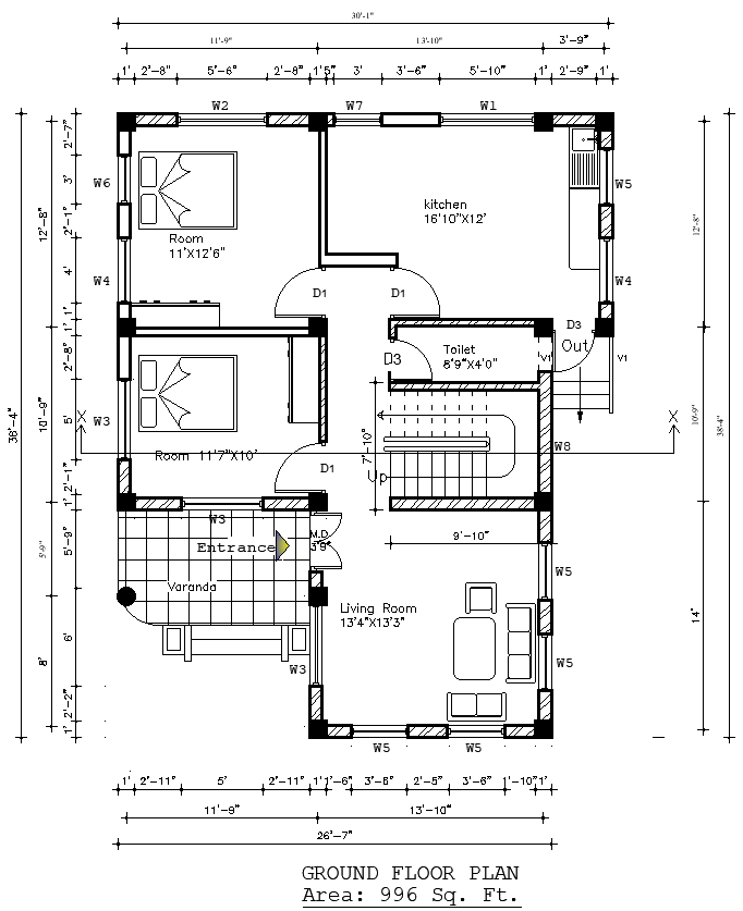
2BHK Ground Floor Layout Design AutoCAD DWG File.That gets your architectural work done with precision and panache. Download the ground floor layout design for a 2BHK house that has been well designed according to functionality and aesthetics. Our AutoCAD DWG file fits perfectly into your designing procedure for architects, builders, and homeowners, thereby making this procedure smooth and quite streamlined. Planned with care to fully utilize space each layout offers areas for living, dining, and bedrooms plus basic amenities. This file is highly editable so you can certainly have it customized according to your different specifications and needs. Enhance your residential projects with this professional-grade layout that caters to modern living but at the same time comfortably and practically fits in. Download now and bring your ideas to life with our easy design-able tool to design for inviting and livable spaces. Do not pass up this valuable chance to model your dream home vision

Uploaded by:
Eiz
Luna

