RCC Raft Foundation Section with Pardi Detail DWG CAD blocks
Description
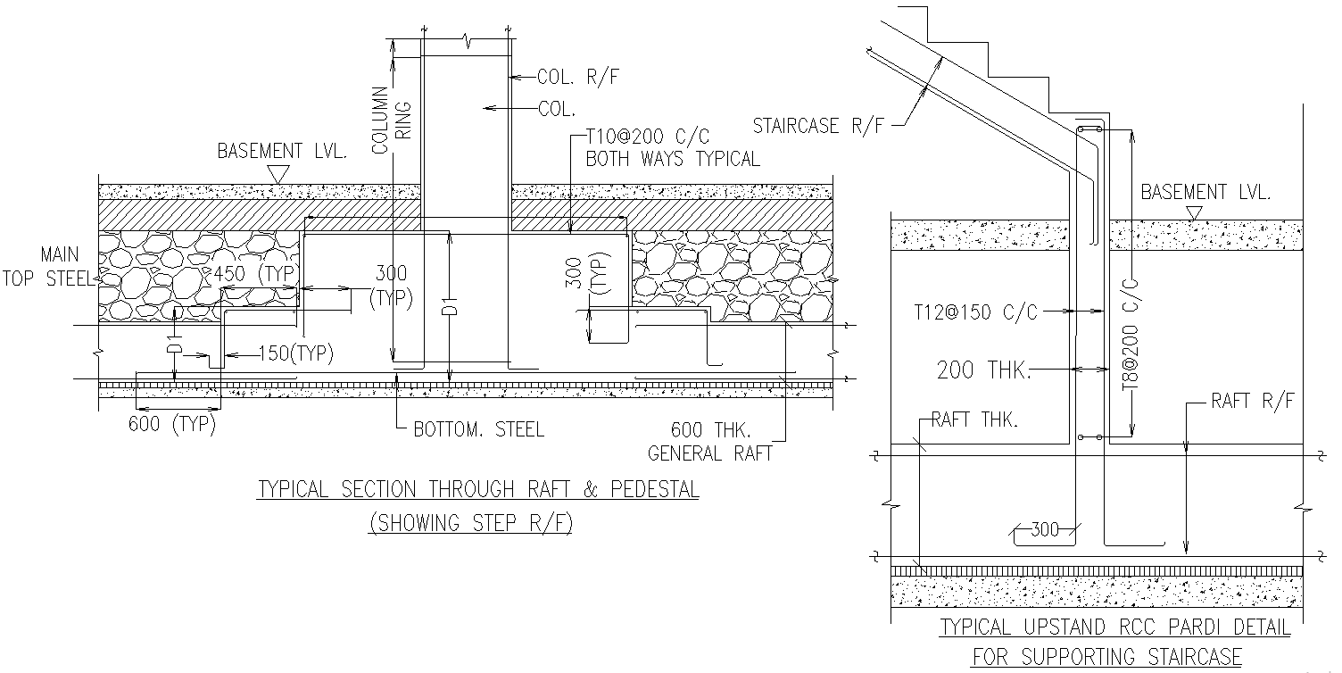
It will examine an AutoCAD DWG file that depicts a section through raft plan design with a typical upstand RCC pardi detail. The technical drawing here communicates the precise design elements such as the specified structural foundations, reinforcement details, and concrete thickness amongst others that comprise critical components of the construction and civil engineering project. This available file is meant for architects, engineers, and builders. The file will be made necessary for any designs and serve as a point of reference in the planning, detailing, and execution of RCC structures. Get the DWG file that contains complete and practical construction insights and accurately illustrates the overall design.
File Type:
3d max
File Size:
1.4 MB
Category::
Construction
Sub Category::
Reinforced Cement Concrete Details
type:
Gold

Uploaded by:
Eiz
Luna

