AutoCAD Home Section and Elevation Drawing in DWG File
Description
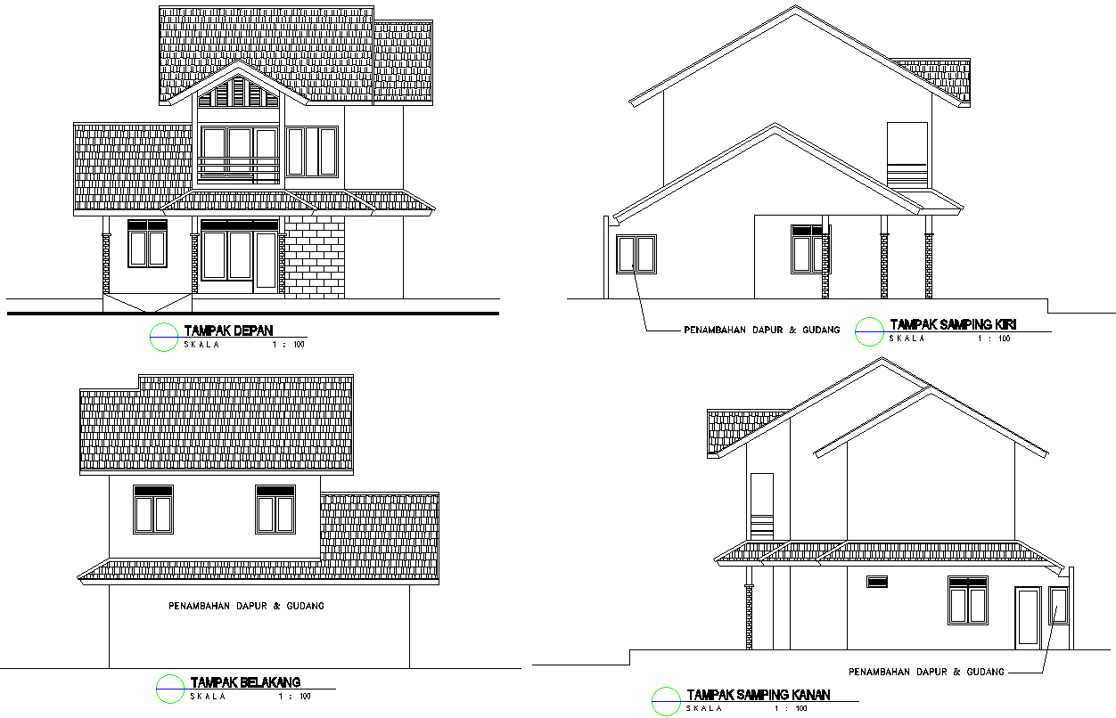
Home Elevation and Section Layout Details AutoCAD DWG File Download" is a thorough resource in the field of architectural design that can be adapted for working professionals and enthusiasts involved in conceptualizing home construction, remodeling, or renovation. With this detailed AutoCAD file, it would be possible to avail yourself of the elevation and section layout clearly placed as an exterior and interior structural detail of a house. Designed with defined dimensions, material specifications, and annotations, this DWG file will work well for architects, builders, and engineers to be designed with efficiency in terms of design execution. It includes details on the design layout of windows and door placement, roof structure, wall section, and foundation levels. The file may easily be customized according to the needs of the project and thus becomes versatile for designing and visualization for house construction projects. Avail of this resource to enhance your architectural planning and real execution based on professional-grade design details.

Uploaded by:
Eiz
Luna

