Pool Heat Exchanger Heating System Piping Diagram AutoCAD DWG File
Description
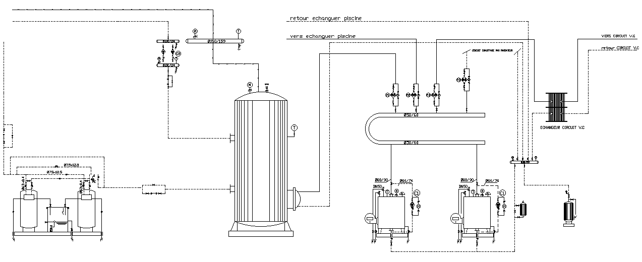
This is an AutoCAD DWG file for a detailed piping diagram for the pool heat exchanger heating system, available for engineers, architects, as well as HVAC individuals. The diagram carries out rather comprehensive layouts for heat exchangers, boilers, pumps, valves, and piping connections that may require significant setups in a network to make an effective heating system. It has proper precision in being made, giving vivid visualization of system flow. Therefore, it can be used as a reference material for the installation, maintenance, and optimization of pool heating systems. Download this DWG file for accurate implementation of your design and to improve efficiency in your pool heating projects.
File Type:
DWG
File Size:
858 KB
Category::
Dwg Cad Blocks
Sub Category::
Autocad Plumbing Fixture Blocks
type:
Gold

Uploaded by:
Eiz
Luna

