Water Pump Installation Diagram Details AutoCAD DWG
Description
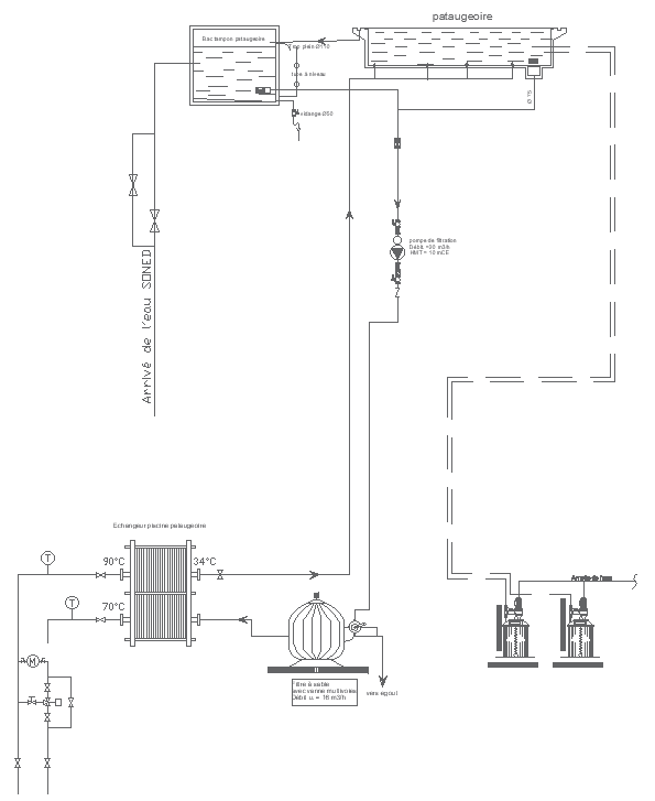
Download the detailed Water Pump Installation Diagram in AutoCAD DWG format, designed for engineers and contractors handling hydraulic and plumbing systems. This drawing is elaborated in the key steps that should be followed while installing the pump; from where to place the pump, piping connection, electrical wiring, etc., to ensure safe and efficient use. With easy-to-read annotations and accurate measurements, this file is a handy guide for water pump installations in households, businesses, or industries. Implemented with best practices and adherence to industry standards, this AutoCAD DWG file streamlines your project planning and enhances the effectiveness of the water pump systems. Get started today and elevate your installation process.
File Type:
DWG
File Size:
105 KB
Category::
Dwg Cad Blocks
Sub Category::
Autocad Plumbing Fixture Blocks
type:
Gold

Uploaded by:
Eiz
Luna

